物件詳細情報
【イトー住研】は、京都市内及び府下一円、特に亀岡市・南丹市・京丹波町などの田舎物件の買取り・斡旋を主に行う不動産会社です。
| 物件種目 | 売戸建住宅 | ||
|---|---|---|---|
| 最寄駅 | JR山陰本線 日吉駅 | ||
| 土地面積 | 公募330.01㎡ | 私道面積 | |
| 価格 | 280万円 | 3.3㎡単価 | 約100坪 |
| 物件所在地 | 京都府南丹市日吉町田原堀尻 | ||
|---|---|---|---|
| 交通 | JR山陰本線日吉駅からバス12分 興風保育所停車徒歩10分 | ||
| 土地権利 | 所有権 | 地目 | 宅地 |
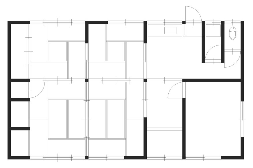
| 建物面積 | 71.50㎡ |
||
| 建ぺい率 | 容積率 | ||
| 建築時期 | 昭和53年3月 | ||
| 建物構造 | 木造瓦葺平屋建て | ||
| 引渡条件 | 相談 | ||
| 現況 | 空家 | 引渡日 | 相談 |
| 都市計画 | 都市計画区域外 | ||
| 前面道路 幅員 | 4m | ||
| 設備 | 市営水道 関西電力 プロパンガス ガレージ有 トイレ汲み取り | ||
| 備考 | 修繕必要 | ||





