物件詳細情報
【イトー住研】は、京都市内及び府下一円、特に亀岡市・南丹市・京丹波町などの田舎物件の買取り・斡旋を主に行う不動産会社です。
| 物件種目 |
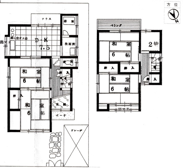
売戸建住宅 |
| 最寄駅 |
JR山陰本線 園部駅から徒歩25分 |
| 土地面積 |
公簿94.21㎡ |
私道面積 |
|
| 価格 |
480万円 |
3.3㎡単価 |
|
| 物件所在地 |
南丹市園部町小桜町140-8 |
| 交通 |
|
| 土地権利 |
所有権 |
地目 |
宅地 |
| 建築構造 |
木造 |
建築時期 |
1982年 |
| 建ぺい率 |
|
容積率 |
|
| 建物面積 |
1階49.27㎡ 2階31.46㎡㎡ |
| 前面道路 |
|
| 引渡条件 |
|
| 現況 |
空家 |
引渡日 |
相談 |
| 都市計画 |
|
| 用途地域 |
|
| 設備 |
|
| 備考 |
|